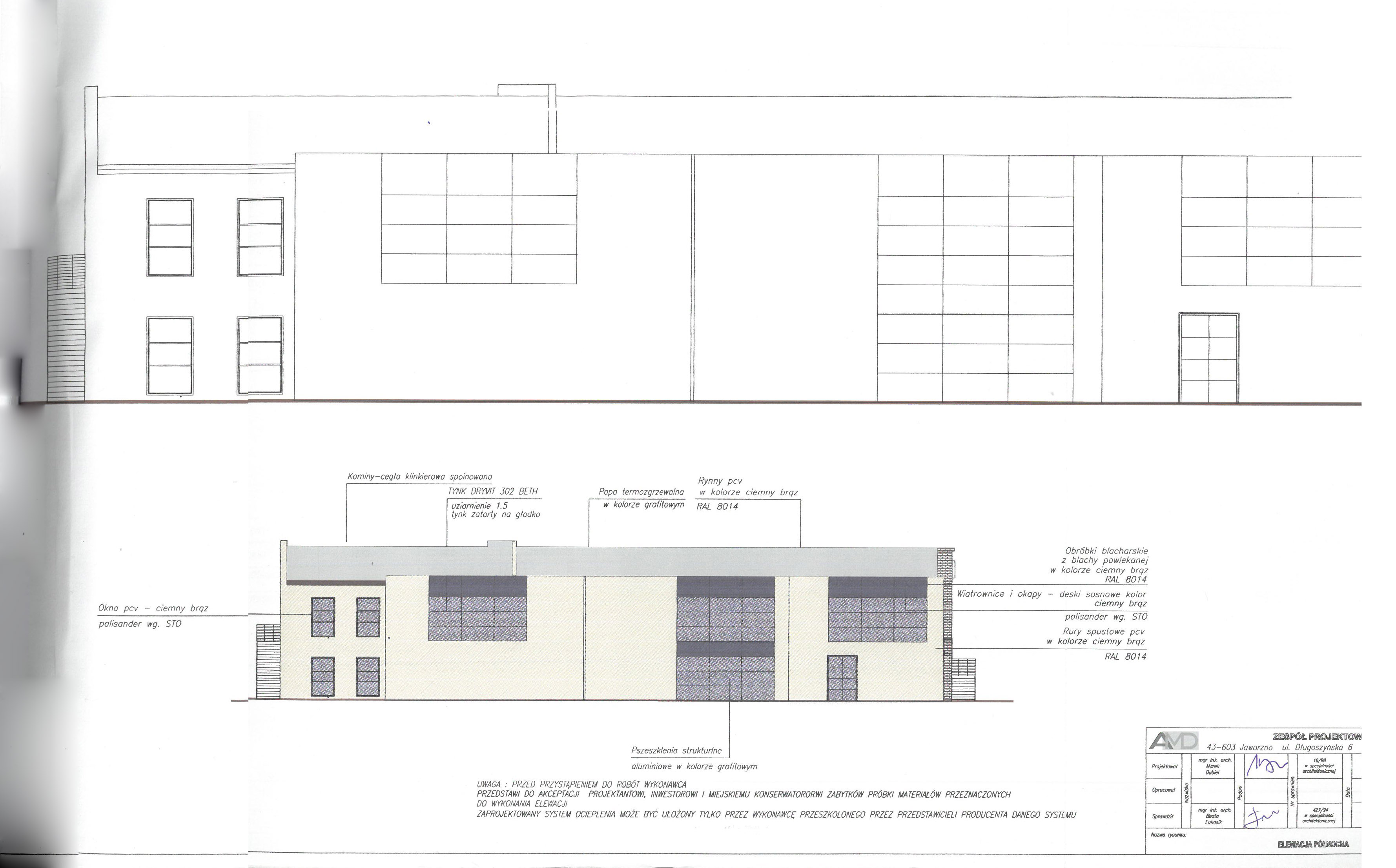
Zapytanie ofertowe na wykonanie prac naprawczych oraz odświeżenie elewacji budynku, przy ulicy Markiefki 44a
Zapytanie cz1
Zapytanie cz2
Załącznik nr 6 !
PROTOKÓŁ Z PRZEPROWADZONEGO ZAPYTANIA OFERTOWEGO 2025
Zapytanie ofertowe na wykonanie remontu wybranych przestrzeni w budynku, poprzez wzmocnienie konstrukcji dachu oraz remontu pracowni plastycznej uwzględniający podłączenie się do instalacji wodno-ściekowej w dziale Zawodzie MDK Bogucice-Zawodzie przy ul. Marcinkowskiego 13a 40-233 Katowice
Unieważnienie zapytania ofertowego
Zapytanie ofertowe na wykonanie rozbiórki przybudówki bibliotecznej Miejskiego Domu Kultury „Bogucice – Zawodzie”, przy ulicy Marcinkowskiego 13A,
40-233 Katowice
Zaproszenie do składania ofert
Rzut parteru – inwentaryzacja Elewacja południowa
14.11.2013
Numer ogłoszenia: 465218 – 2013; data zamieszczenia: 14.11.2013
Numer ogłoszenia: 465290 – 2013; data zamieszczenia: 14.11.2013
15.10.2013 Wybór oferty:
Katowice: Realizacja robót budowlanych w ramach Projektu
Przebudowa, remont i wyposażenie MDK Bogucice – Zawodzie
Numer ogłoszenia: 436866 – 2013; data zamieszczenia: 25.10.2013
OGŁOSZENIE O UDZIELENIU ZAMÓWIENIA – Roboty budowlane
Zamieszczanie ogłoszenia: obowiązkowe.
Ogłoszenie dotyczy: zamówienia publicznego.
Czy zamówienie było przedmiotem ogłoszenia w Biuletynie Zamówień Publicznych:
tak, numer ogłoszenia w BZP: 387260 – 2013r.
Czy w Biuletynie Zamówień Publicznych zostało zamieszczone
ogłoszenie o zmianie ogłoszenia: nie.
SEKCJA I: ZAMAWIAJĄCY
I. 1) NAZWA I ADRES: Miejski Dom Kultury „Bogucice Zawodzie”,
ul. Markiefki 44a, 40-213 Katowice, woj. śląskie,
tel. 32 203 05 17, faks 32 203 55 24.
I. 2) RODZAJ ZAMAWIAJĄCEGO:
Inny: samorządowa instytucja kultury.
SEKCJA II: PRZEDMIOT ZAMÓWIENIA
II.1) Nazwa nadana zamówieniu przez zamawiającego:
Realizacja robót budowlanych w ramach Projektu Przebudowa,
remont i wyposażenie MDK Bogucice – Zawodzie.
II.2) Rodzaj zamówienia: Roboty budowlane.
II.3) Określenie przedmiotu zamówienia:
Przedmiotem niniejszego zamówienia są roboty budowlane
polegające na remoncie pomieszczania w Dziale Bogucice – ul. Markiefki 44A (Sala konferencyjna) oraz w Dziale Zawodzie – ul. Marcinkowskiego 13 (Sala prób muzycznych – Świetlica z magazynami, sanitariaty: damski i męski) zgodnie ze specyfikacją techniczną i dokumentacją stanowiącymi załączniki do niniejszej SIWZ. W ramach zadania należy wykonać roboty budowlane związane z: Przebudową Sali konferencyjnej w Dziale Bogucice, w tym: wymianie istniejących drzwi do pomieszczenia wraz z futrynami na drzwi antywłamaniowe, wykonaniu okna podawczego
- kasowego z półkami i parapetami przy okienku podawczym wraz z montażem przy okienku dzwonka bezprzewodowego podającego sygnał do pomieszczeń biurowych oraz montażem żaluzji antywłamaniowej na okienku, otwieranej od wewnątrz, demontażu stropu podwieszanego z oprawami oświetleniowymi w całości pomieszczenia w sposób umożliwiający montaż ponowny tego stropu po wykonaniu robót w powstałych pomieszczeniach, budowie ścianek z płyt gipsowo – kartonowych, montażu ścianki szklonej na profilach aluminiowych wraz z drzwiami do pomieszczenia kasy, montażu drzwi do nowego pomieszczenia biurowego, ułożeniu paneli podłogowych o zwiększonej odporności na ścieranie, dostosowanych do pomieszczeń użyteczności publicznej wraz z matą wygłuszającą, malowaniu ścian w całym pierwotnym pomieszczeniu wraz z uzupełnieniem ubytków i gipsowaniem nowych ścian oraz uzupełnieniu elementów uszkodzonych w czasie wymiany drzwi i okna w korytarzu wejściowym, montażu żaluzji antywłamaniowych wewnętrznych na oknach, zmianie instalacji elektrycznej oświetleniowej z wykorzystaniem istniejących opraw oświetleniowych, demontaż i montaż opraw z rozdziałem na poszczególne pomieszczenia, montaż nowych wyłączników wraz z okablowaniem, montażu kratki wentylacyjnej. Remoncie Sali prób muzycznych z magazynami oraz sanitariatów (damskiego i męskiego) w Dziale Zawodzie MDK Bogucice – Zawodzie w Katowicach, w tym: remoncie ŚWIETLICY, polegającym na: skuciu starych tynków, wyrównaniu powierzchni pod nowe tynki, ułożeniu tynków mechanicznych z gładzią gipsową, zagruntowaniu podłoży pod malowanie, malowaniu pomieszczenia, obudowie instalacji c.o., montażu żaluzji antywłamaniowych na oknach, odnowieniu istniejącego parkietu przez cyklinowanie i malowanie; remoncie MAGAZYNÓW, polegającym na: zmyciu starych farb i lakierów ze ścian, wyrównaniu ścian i sufitów pomieszczeń i zagruntowaniu pod malowanie, malowaniu pomieszczeń farbami emulsyjnymi; remoncie SANITARIATÓW, polegającym na: wykuciu istniejących drzwi i montaż nowych wraz poszerzeniem otworu drzwiowego i założeniem nowego nadproża oraz wykończeniu ścian od strony korytarza, wymianie instalacji wod. – kan., wymianie instalacji elektrycznej, montażu i wykonaniu wentylacji mechanicznej, przygotowaniu ścian i podłóg pod ułożenie płytek gresowych, wykonaniu izolacji przeciwwilgociowej na ścianach i podłodze, ułożeniu płytek gresowych na ścianach i podłodze, wykonaniu stropu podwieszanego, ustawieniu i montażu ścianek działowych, dostawie i montażu wyposażenia sanitariatów, tj. muszli ustępowych na stelażu, pisuaru, umywalek, baterii, złączek na wąż, kratek ściekowych, luster, podajników mydła i papieru). W ramach realizacji zamówienia po stronie Wykonawcy, poza pracami opisanymi w przedmiarze i dokumentacji projektowej, są między innymi: wykonywanie prac budowlanych w taki sposób, aby nie dezorganizowały bieżącej działalności Zamawiającego; koszty właściwego oznakowania i zabezpieczenia prowadzonych robót; koszty związane z zabezpieczeniem robót w czynnym obiekcie; koszty uporządkowania terenu; koszty wywozu, składowania i utylizacji gruzu, opakowań oraz innych demontowanych materiałów; wszystkie inne koszty niezbędne do poniesienia przez Wykonawcę dla właściwej realizacji robót i osiągnięciu zamierzonego celu. Dopuszcza się możliwość zastosowania produktów, wyrobów, materiałów równoważnych o właściwościach i parametrach technicznych nie gorszych niż przyjęto w dokumentacji technicznej. Zastosowanie materiałów równoważnych nie może spowodować konieczności zmiany przyjętej technologii w dokumentacji projektowej. Szczegółowy opis przedmiotu zamówienia zawarty jest w projekcie, przedmiarze, dokumentacji technicznej, stanowiących integralną częścią niniejszej SIWZ. Wraz z wydaniem przedmiotu umowy Wykonawca jest zobowiązany wydać Zamawiającemu dokumentację powykonawcą. Zaleca się, aby Wykonawca dokonał wizji lokalnej, a także zdobył na swoją odpowiedzialność i ryzyko, wszelkie dodatkowe informacje, które mogą być konieczne do przygotowania oferty oraz zawarcia przyszłej umowy i wykonania zamówienia.
Termin wykonania zamówienia: Zamówienie zostanie zrealizowane w terminie do 30 dni od dnia zawarcia umowy.
II.4) Wspólny Słownik Zamówień (CPV): 45.00.00.00-7.
SEKCJA III: PROCEDURA
III.1) TRYB UDZIELENIA ZAMÓWIENIA: Przetarg nieograniczony
III.2) INFORMACJE ADMINISTRACYJNE
- Zamówienie dotyczy projektu/programu finansowanego ze środków Unii Europejskiej:
nie
SEKCJA IV: UDZIELENIE ZAMÓWIENIA
IV.1) DATA UDZIELENIA ZAMÓWIENIA: 25.10.2013.
IV.2) LICZBA OTRZYMANYCH OFERT: 4.
IV.3) LICZBA ODRZUCONYCH OFERT: 1.
IV.4) NAZWA I ADRES WYKONAWCY, KTÓREMU UDZIELONO ZAMÓWIENIA:
- A-M Sp. z o. o., ul. 11 – go Listopada 67/40, 41-500 Chorzów, kraj/woj. śląskie.
IV.5) Szacunkowa wartość zamówienia (bez VAT): 63612,64 PLN.
IV.6) INFORMACJA O CENIE WYBRANEJ OFERTY ORAZ O OFERTACH Z NAJNIŻSZĄ I NAJWYŻSZĄ CENĄ
- Cena wybranej oferty: 68228,17
-
Oferta z najniższą ceną: 68228,17 / Oferta z najwyższą ceną: 94339,94
-
Waluta: PLN.
24.09.2013 Przetarg na remont:
B_02_01_01_Konstrukcje_stalowe
B_03_01_01_Okladziny_z_plyt_gipsowo-kartonowych
B_04_01_01_Tynki_cem_wap_tynki_zewn
B_06_01_01_Izolacje_przeciwwilgociowe
DM_00_00_00_Wymagania_Ogolne_STWiORB.pdf
E_01_01_01_Wewnetrzna_instalacja_elektryczna
RYS_2_RZUT_POMIESZCZEN_INWENTARYZACJA
RYS_3_INSTALACJA_ELEKTRYCZNA_INWENTARYZACJA
RYS_4_PRZEKROJ_AA_INWETARYZACJA
RYS_6_RZUT_POMIESZCZEN_ZAKRES_PRAC
RYS_7_SZCZEGOL_WYKONANIA_OKIENKA_PODAWCZEGO.pdf
RYS_9_ZESTAWIENIE_STOLARKI_OKIENNEJ
rys_nr_1_Rzut_pomieszczen_inwentaryzacja
rys_nr_2_Przekroje_aabb_inwentaryzacja
rys_nr_3_Rzut_pomieszczen_zakres_prac
rys_nr_4_Rzut_pomieszczen_projekt
rys_nr_5_Przekroj_AA_BB_projekt
S_01_01_01_wewnetrzna_instalacja_wod
S_02_01_01_instalacja_wentylacji_mechanic
13.08.2013 Przetarg na remont:
B.03.01.01_Okladziny z plyt gipsowo kartonowych
B.04.01.01_Tynki_cem_wap_tynki_zewn
B.06.01.01_Izolacje_przeciwwilgociowe
E.01.01.01_Wewnetrzna_instalacja_elektryczna
rys.nr_1_-_Rzut_pomieszczen-inwentaryzacja
rys.nr_2_-_Przekroje_a-ab-b_-_inwentaryzacja
rys.nr_3_-_Rzut_pomieszczen_-_zakres_prac
rys.nr_4_-_Rzut_pomieszczen_projekt
rys.nr_5_-_Przekroj_A-A_B-B_-_projekt
RYS_2_RZUT_POMIESZCZEN_INWENTARYZACJA
RYS_3_INSTALACJA_ELEKTRYCZNA_INWENTARYZACJA
RYS_4_PRZEKROJ_A-A_INWENTARYZACJA
RYS_6_RZUT_POMIESZCZEN-ZAKRES_PRAC
RYS_7_SZCZEGOL_WYKONYWANIA_OKIENKA_PODAWCZEGO
RYS_9_ZESTAWIENIE_STOLARKI_OKIENNEJ
S.01.01.01_wewnetrzna_instalacja_wod
OGŁOSZENIE O ZAMÓWIENIU PUBLICZNYM NA USŁUGI OCHRONY FIZYCZNEJ OSÓB I MIENIA W ROKU 2012 ( 14.12.2011 )
ZAŁ NR 1 do SIWZ FORMULARZ OFERTOWY.PDF
ZAŁ nr 2 DO SIWZ OŚWIADCZENIE O BRAKU WARUNKÓW DO WYKLUCZENIA.PDF
ZAŁ NR 3 DO SIWZ OŚWIADCZENIE O SPEŁNIANIU WARUNKÓW.PDF
ZAŁ NR 4 DO SIWZ WYKAZ WYKONANYCH USŁUG.PDF
ZAŁ NR 5 DO SIWZ WYKAZ NARZĘDZI POTRZEBNYCH DO WYKONANIA PRZEDMIOTU ZAMÓWIENIA.PDF
ZAŁ NR 6 DO SIWZ WYKAZ OSÓB KTÓRE BĘDĄ UCZESTNICZYĆ W WYKONANIU ZAMÓWIENIA.PDF
ZAŁ NR 7 DO SIWZ PROJEKT UMOWY.PDF
Ogłoszenie o udzieleniu zamówienia publicznego 16.11.2010
Wybór 22.10.2010r
Ogłoszenie o zamówieniu publicznym na Klimatyzację Sali Widowiskowej 30.09.2010
Specyfikacja istotnych warunków zamówienia „SIWZ” do ogłoszenia o remoncie wentylacji (MDK_SIWZ.pdf)
Załącznik Nr 1 do SIWZ Umowa o roboty budowlane (MDK_umowa.doc)
Załącznik Nr 2 do SIWZ Formularz Ofertowy (MDK_formularz1.doc)
odpowiedź na pytania(.pdf)
Pozostałe załączniki do SIWZ
Zamawiający /inwestor/ prosi, by wszystkie zainteresowane firmy, po pobraniu dokumentów
wysyłały swoje dane kontaktowe na adres e-mail: email: sekretariatmdk@mdkbogucice-zawodzie.pl
Ogłoszenie o unieważnieniu przetargu na Klimatyzację Sali Widowiskowej 24.09.2010
Ogłoszenie o zmianie ogłoszenia 16.09.2010
Modyfikacja SIWZ oraz odpowiedzi na pytania 16.09.2010
Zmiana terminu otwarcia ofert – termin otwarcia
23.09.2010r godz. 12,30
- 03.09.2010 OGŁOSZENIE O ZAMÓWIENIU – roboty budowlane: Remont wentylacji – montaż klimatyzacji opartej o istniejący układ powietrzny ZNW-1 dla sali widowiskowej w budynku Miejskiego Domu Kultury w Katowicach – Zawodziu przy ul. Marcinkowskiego 13.
Specyfikacja istotnych warunków zamówienia „SIWZ” do ogłoszenia o remoncie wentylacji (MDK_SIWZ.pdf)
Załącznik Nr 1 do SIWZ Umowa o roboty budowlane (MDK_umowa.doc)
Załącznik Nr 2 do SIWZ Formularz Ofertowy (MDK_formularz.doc)
Pozostałe załączniki do SIWZ
(zal_nr_2a_do_SIWZ_Oswiadczenie.doc)
(zal_nr_2b_do_SIWZ_Oswiadczenie.doc)
(zal_nr_2c_do_SIWZ_Oswiadczenie.doc)
(zal_nr_2d_do_SIWZ_Wykaz_robot_.doc)
(zal_nr_2e_do_SIWZ_Wykaz_osob_.doc)
(zal_nr_2f_do_SIWZ_Oswiadczenie.doc)
(zal_nr_3_przedmiar_robót.pdf)
(zal_nr_4_specyfikacja_techniczna.pdf)
(zal_nr_5_do_SIWZ_Projekt_podkonstrukcji_pod_agregat.pdf)
(zal_nr_6_projekt_wykonawczy_instalacji_klimatyzacji_z_załącznikami.rar)
(zal_nr_7_projekt wykonawczy_zasilanie_elektryczne.pdf)
(zal_nr_8_Przedmiar_robot_Gaj4.pdf)
(zal_nr_9_Przedmiar_robot_podkonstrukcji_pod_agregat.pdf)
(Zal_nr_10_Projekt_wykonawczy_zasilanie_elektryczne_klima.pdf)
(Zal_nr_10a_Plan_trasy_kabla_zasilajacego.pdf)
(zal_nr_10b_Rozdzielnica_glowna_RGrozbudowa.pdf)
(Zal_nr_11_rysunek_Podkonstrukcja_pod_agregat.pdf)
(Zal_nr_12_Schemat_elektrykaMSAT.pdf)
(zal_2a.doc)
(zal_2b.doc)
(zal_2c.doc)
(wykaz robot_zal_2d.doc)
(wykaz osob_zal_2e.doc)
(zal_2f.doc)
(zal_3.pdf)
(zal_4.pdf)
(zal_5.pdf)
(zal_6.rar)
(zal_7.pdf)
(Zal._nr8_Przedmiar_robot_Gaj4_16.09.2010.pdf)
(Zal._nr9_Przedmiar_robot_podkonstrukcji_pod_agregat_16.09.2010.pdf)
(Zal.nr_10_Projekt_wykonawczy_zasilanie_elektryczne_klima_16.09.2010.pdf)
(Zal.10a_Plan_trasy_kabla_zasilajacego_16.09.2010.pdf)
(Zal.10b_Rozdzielnica_glowna_RGrozbudowa_16.09.2010.pdf)
(Zal._11_rysunek_Podkonstrukcja_pod_agregat_16.09.2010.pdf)
(Zal.nr_12_Schemat_elektrykaMSAT_16.09.2010.pdf)
Zmiana terminu otwarcia ofert – termin otwarcia 23.09.2010r godz. 12,30
– wprowadzenie 09-03-2026
– czas udostępnienia: 09-03-2026
– informacje dostarczył: Katarzyna Skowron – Dudczak
– czas wytworzenia: 09-09-2026




